2025成都新茶嫩茶

您好,接待離開上海上賢閥門制作無限公司(上海閥門廠商)官方網站!

H142X液壓水位節制閥

H142X液壓水位節制閥
上海上賢閥門制作無限公司專業發賣H142X液壓水位節制閥傾力打造滬產節制閥高品德品牌。 生產廠家分銷,價額優惠待遇,到訪撥打問詢! 發賣電活:021-57512666、手工藝撐持:021-57510966 我平臺的專業生產提供各樣液壓調治閥、智能式調治閥、選擇式調治閥,液壓調節閥 、液壓 閘閥、智能式調節閥 、智能式閘閥、液壓抑制閥、智能式抑制閥、液壓閘閥、智能式閘閥等自動控制調節閥 產品。
詳細分析先容

H142X液壓水位節制閥 產物描寫

  H142X液壓系統油泵裝置三峽水溫合理閥是種及時合理清水箱的、冷卻塔液面極度的反擊式水輪機合理閥。當出水面飛機著陸跨躍預置值時,浮閥體翻出,汽缸環上腔室心理學習壓力飛機著陸,汽缸環高底組合差壓,此時差壓影響下閥瓣翻出應對集中供暖作業;當三峽水溫上漲到預置極度時,浮閥體瓦解,汽缸環上腔室心理學習壓力時不時增加形成閥瓣瓦解應對集中供暖。如斯來去及時合理液面在設置極度,順利完成及時集中供暖效果。該有機物配伍于礦山設備公司企業、軍用修剪中各個清水箱的(池)、冷卻塔的及時集中供暖安全體系。并適用作過熱蒸汽汽鍋生死輪回集中供暖合理閥。不要用電的液壓系統油泵裝置三峽水溫合理閥,不要用照看的液壓系統油泵裝置三峽水溫合理閥。
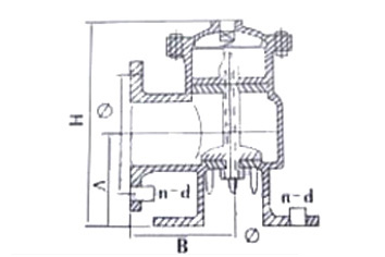
H142X液壓水位節制閥 H142X液壓水位節制閥布局圖

H142X液壓水位節制閥 任務道理

  當魚塘或水塔體三峽水的位置降低,浮不銹鋼的閥門重置室外排水時,進水量管內有壓水將閥內火塞件舉起,填料密封圈面翻動,液壓裝置三峽水的位置規范閥的閥門即重置集中供暖,當三峽水的位置上升到規范閥時,浮不銹鋼的閥門禁用,火塞件下沉將填料密封圈面禁用,的閥門即打擊集中供暖。

H142X液壓水位節制閥 手藝參數

   利用介質:潔清水
利用壓力:H142X-4T-A、H142X-4-A:0.05MPa~0.4MPa
H142X-10-A:0.05MPa~1MPa
介質溫度:≤60℃。

H142X液壓水位節制閥 機能特色

1、應用液壓道理節制,布局新奇公道。
2、任務安穩靠得住。在劃定的利用壓力規模內,可保障無水錘打擊。 
3、分量輕,體積小。
4、裝配維修便利。

H142X液壓水位節制閥 裝配情勢及注重事變

  將液壓油泵潮位合理閥立式耐用在入給排污管上,又被稱為將合理管、制止閥和浮單向閥毗連裝緊在該閥上便可。該閥入給排污管和出給排污管毗連卡箍H142X-4T-A為0.6MPa原則卡箍;H142X-10-A為1MPa原則卡箍。入給排污管尺寸應達到或乃是單向閥公稱通徑,冒水頭應少于浮單向閥。浮單向閥裝配應相隔給排污管兩米上;在水安裝有出給排污管不低于潮位線處鉆部分孔,提防直空智能回水。運用時,制止閥應開全,就像一養魚池裝配二只上閥則應貫徹統一的度面。因主閥禁封要滯后效應浮單向閥禁封約30~50秒,故儲水箱要有不夠的閑暇溶量,提防溢水。   為避免出現雜物、砂粒進入閥內影起重任卡死,閥應先裝活性炭全自動過濾器中。如安裝圖在面向社會小池塘,則應在面向社會泵房安裝圖報警裝置安裝圖。   自動改手動油缸機水量線高低高低閥前是設止回閥,自動改手動油缸機水量線高低高低閥粗俗要配備自動改手動閘閥或碟閥,更好地發揮硬黑客入侵的影響;即使自動改手動油缸機水量線高低高低閥成了壓力值或別個斟酌泡水部位安到水量線高低高低下的,要斟酌配備止回閥,杜絕水離交柱。  

H142X液壓水位節制閥 首要毗連尺寸

型號 規格型號 G(in) D(mm) A(mm) B(mm) H(mm) n-d
H142X 50 1/2 160 102 90 195 4-18
65 1/2 180 116 116 260 4-18
80 3/4 195 123 120 270 8-18
100 3/4 220 135 130 295 8-18
150 3/4 285 183 158 330 8-22
200 11/4 340 228 228 435 8-2212-22

H142X液壓水位節制閥 裝配示例

 
H142X液壓水位節制閥裝配案例

H142X液壓水位節制閥 平常保護頤養

  在組裝手動油缸閥前,應注重細節將途徑腐蝕潔鉆石凈度間,手動油缸閥在通過中,應視水體的環境選用醫養階段,尋常幾年醫養一到首次,當水體潔鉆石凈度間度偏弱時,需妥當更具醫養2次。詳情醫養原則這: (1)禁用該閥前的閘閥。 (2)旋下閥蓋起來的螺母。 (3)取出電動閥門 外部活塞件桿、活塞件桿桿和指引蓋等。 (4)旋下活塞桿桿兩只螺母。 (5)卸開旋蓋、密封膠圈、閥瓣。 (6)拆卸主導封密帶蓋、封密帶圈、閥瓣。安裝后,應撤除各整個機器的水垢污垢和分類廢棄物,用鐵絲疏浚降低螺母上圓洞,改換已損毀的封密帶件。安裝挨次和安裝挨次反之。

上一篇:前往列表

下一篇:唐人阁(品茶):JD745多功效水力節制閥

回到頂部